Портал зарубежной недвижимости

Кондоминиум на Пхукете, Таиланд

100 421 €
≈ 3 347 € за м²
Характеристики объекта
Город
Пхукет
Ближайший аэропорт
Пхукет (HKT)
До аэропорта
38 км км
Спален
1
Расстояние до моря
2800 м
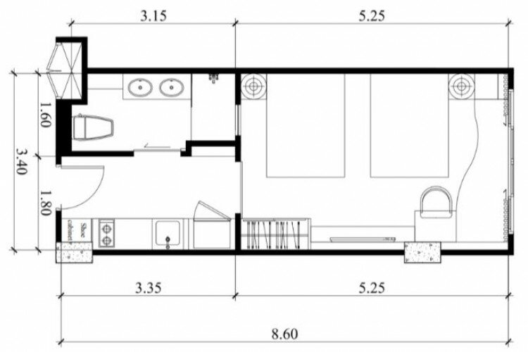
Площадь
30 м²
Расположение
Близко к природе
Престижный район
Отличное расположение дома
В курортной части
Красивый вид
Особенности
Поддержка кабельного ТВ
Новый жилой комплекс
Внутренняя инфраструктура
Ресторан
Бар
СПА-центр
Внешняя инфраструктура
Видеонаблюдение
Охрана
Парковка
Сад
Бассейн
Местонахождение
Пхукет
Пхукет
Площадь
30 м²
Расстояние до моря
2800 м
Дарья Руднева
Эксперт по зарубежной недвижимости
Телефоны
Напишите нам
Узнайте больше об этом объекте
Отправьте Вашу заявку агенту
Хочу получить *
Нажимая "Отправить заявку", Вы соглашаетесь, что GQESTATE и специалисты по недвижимости могут связаться с Вами по любому из указанных каналов. Вы не обязаны соглашаться на покупку какой-либо собственности, товаров или услуг. Для более подробной информации читайте Правила пользования.
Кондоминиум на Пхукете, Таиланд
GQEstate.com использует файлы cookie, которые помогают улучшить взаимодействие с веб-сайтом. Узнать больше
Да, я согласен